セミオーダーメイド賃貸マンション 須山のリワードマンション
今更マンションの建設なんてと思っていませんか?
最近では、誰もができる資産運用として購入した土地や、自宅の敷地を活用するためにマンションの建設を考える方が増えています。
資産運用のひとつの方法として、低利で調達した借入金を投資リスク管理をしながら一定以上のリターンを得られる事業としてとらえてみて下さい。
狭小地対応マンション
須山建設では8,300戸(R3.9月現在)を超える施工実績で培ったノウハウを生かし、これまでの規格商品ではあきらめていた狭小地や不整形地、高低差のある土地にも対応します。

物件概要
商業地域/敷地面積:230.19m2(69坪)/建築面積:175.30m2(53坪)/延べ床面積:797.01m2(241坪)/5階建て/1K・20戸
わずか69坪の土地に、5階建で20世帯のマンションを建設し、狭い敷地を最大限活用することができました。

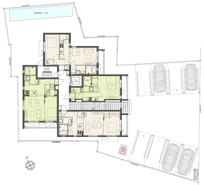
変形地対応マンション
一見活用が難しいと思われる土地でも、土地の可能性を最大限に引き出す最良のプランをご提案します。

物件概要
近隣商業地域/敷地面積:557.93m2(168坪)/建築面積:227.14m2(68坪)/ 延床面積:966.15m2(292坪)/5階建て/1LDK19戸、1K1戸
敷地面積約168坪の奥に広い変形地に、1LDK19戸、1K1戸の計20戸をプランニング。変形地を有効に活用し、敷地内に8台の駐車場と20台の駐輪場を確保しました。

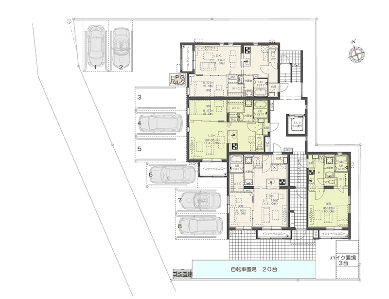
変形地対応マンション

物件概要
商業地域/敷地面積:550.43m2(166坪)/建築面積:254.61m2(77坪)/ 延床面積:1,081.45m2(327坪)/5階建て/1LDK19戸、1K1戸
敷地面積約166坪の台形の土地に、1LDK19戸、1K1戸の計20戸をプランニング。変形地を有効に活用し、敷地内に8台の駐車場と20台の駐輪場、3台のバイク専用駐輪場を確保しました。

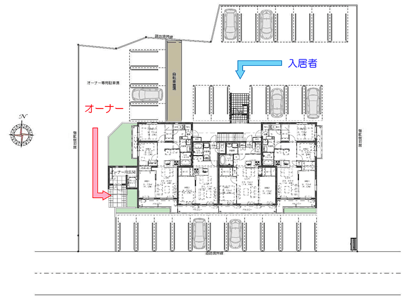
オーナールーム付き
賃貸マンションのメリット
- 自宅部分のローンを賃貸収益で賄え、なおかつ手取り収益も得られる。
- 建て替えることにより、耐震性や防犯性が向上。老後に向けての対策が行える。
- 税金対策になる。(相続税、固定資産税)
オーナールーム付き
賃貸マンション
最近では、オーナールーム付き賃貸マンションが注目されております。ただし、資産運用を有利に進めるためには、賃貸に適した立地を選ぶ必要があります。

物件概要
第一種低層住居専用地域
敷地面積:1,010.50m2(305坪)/建築面積:388.47m2(117坪)/延べ床面積:834.82m2(252坪)/3階建て/3LDK4戸、2LDK2戸、1LDK2戸、オーナー住戸1戸
最上階にオーナー様住戸を構え、下階に3LDK、2LDK、1LDKの8戸を持つオーナー住戸併用マンションです。オーナー住戸には1階に専用玄関があり、専用エレベータで3階に上がるため、入居者との動線を別にして、プライバシーに配慮しました。